Slapukų naudojimas

Mums reikia Jūsų sutikimo naudoti slapukus (cookies), kad galėtume tobulinti svetainės veikimą, analizuoti srautą ir rodyti Jums aktualų turinį. Plačiau apie duomenų apsaugą.

Savas bustas - nekilnojamo turto ekspertai LNTAA

Patalpos pardavimui

Įsiminti
Parduodamos 398 kv.m. patalpos Bugenių k. Mažeikių r. su 48,80 a. sklypu

Parduodamos 398 kv.m. patalpos Bugenių k. Mažeikių r. su 48,80 a. sklypu

Array ( [id] => 39736 [weight] => 21 [lang] => 1 [title] => Parduodamos 398 kv.m. patalpos Bugenių k. Mažeikių r. su 48,80 a. sklypu [title_web] => Parduodamos 398 kv.m. patalpos Bugenių k. Mažeikių r. su 48,80 a. sklypu [price] => 0.00 [price_euro] => 45000.00 [price_info] => [summary] => [body] =>

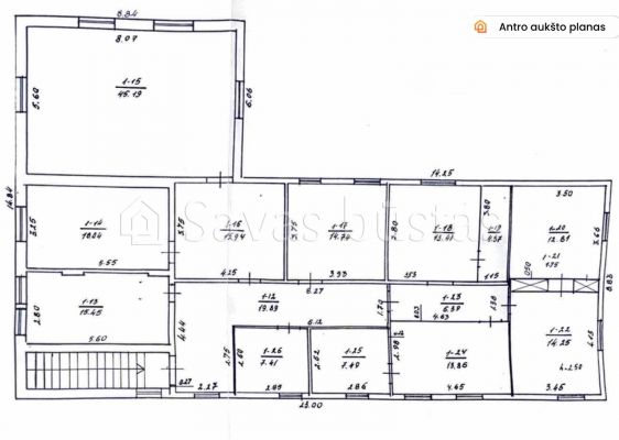
Parduodamas istorinį charakterį turintis 1901 m. statybos mūrinis, dviejų aukštų 398 kv. m pastatas Bugenių g., Bugeniuose, Mažeikių r. (buvę kultūros namai). Pastatas stovi 48,80 arų žemės sklype su atliktais kadastriniais matavimais, yra miestelio vandentiekis. Nors objektui reikalingas kapitalinis remontas, tai puiki galimybė prikelti solidų pastatą naujam gyvenimui ir pritaikyti jį pasirinktai veiklai.

Pardavimo kaina: 45 000 Eurų.
Komisinis mokestis pirkėjui netaikomas.

Susidomėjote? Skambinkite ir suderinsime laiką apžiūrai!
Sertifikuota NT brokerė Kristina Kyzelienė
Tel.: +370 657 87900
El. paštas: kristina.kyzeliene@savasbustas.lt

BENDRA INFORMACIJA:
- Adresas: Bugenių g ., Bugeniai, Mažeikių r.
- Bendras plotas: 398 kv. m;
- Sklypo plotas : 48,80 arų
- Paskirtis: kultūros;
- Statybos metai: 1901 m.;
- Aukštai: 2;
- Namo tipas: mūrinis;
- Vandentiekis: miestelio.

LOKACIJA:
- Mažeikiai: 10 km;
- Plungė: 50 km;
- Šiauliai: 90 km.

Ieškote patalpų gamtos apsuptyje, Mažeikių rajone?
Kviečiame apžiūrėti Jums patogiu laiku.
----------------------------------------
Norite, kad Jūsų nekilnojamojo turto skelbimas būtų toks pat reprezentatyvus ir plačiai reklamuojamas? Skambinkite ir mes tuo pasirūpinsime!

NORITE PARDUOTI? SKAMBINKITE - NUPIRKSIME MES ARBA PADĖSIME
SKUBIAI PARDUOTI.

 

[body_web] => [body_spec] => [status] => 0 [address] => [address_lat] => 0.000000 [address_lng] => 0.000000 [address_title] => [address_info] => [address_body] => [address_mapslt] => [streetview] => [link_360] => [staff_id] => 39127 [similar] => Array ( ) [discount] => 0 [isperkama_nuoma] => 0 [sildymas_lapkritis] => 0.00 [sildymas_gruodis] => 0.00 [sildymas_sausis] => 0.00 [sildymas_vasaris] => 0.00 [sildymas_kovas] => 0.00 [matoma] => 1 [data] => 2026-04-03 16:42:36 [update_data] => 2026-04-03 16:47:43 [addr] => {"fk_placereg_adm_units_id":359,"fk_placereg_adm_units":"Ma\u017eeiki\u0173 r. sav.","fk_placereg_settlements_id":10148,"fk_placereg_settlements":"Bugeniai","aruodas2_region_id":"359","aruodas2_region":"Ma\u017eeiki\u0173 r.","aruodas2_district_id":"10148","aruodas2_district":"Bugeni\u0173 k."} [link] => /lt/patalpos_pardavimui/39736-parduodamos_398_kvm_patalpos_bugeniu_k_mazei [export] => 1 [show_domoplius] => 1 [show_aruodas] => 1 [show_mls] => 1 [show_realu] => 1 [category] => 19 [broker] => Array ( [id] => 39127 [weight] => 20 [orderno] => [lang] => 1 [region] => [name] => Kristina Kyzelienė [pareigos] => NT Savas būstas brokerė/ Mažeikių biuro vadovė/ Ventos g.51, Mažeikiai [tel] => +370 657 87900 [fax] => [email] => kristina.kyzeliene@savasbustas.lt [body] =>

Turiu vadovaujamo darbo patirties, todėl puikiai žinau privalumus dirbant komandoje ir gebu ne tik dirbti joje, bet ir skirstytis darbais pagal įgūdžius ir galimybes.

Dirbdama vadovaujuosi posakiu: "Svajonės virsta realybe, kai turite patikimą partnerį šalia." Tad tampu patikima partnerė, kuri užtikrins, kad kiekvienas žingsnis NT rinkos kelionėje būtų užtikrintas ir tikslus. Jūsų sėkmė – mano prioritetas. Ir visai nesvarbu, perkate, parduodate ar nuomojate. Esu tikra, kad mums pakeliui. 

[status] => 1 [image] => Untitled_1a_image.JPG [video] => [matoma] => 1 [data] => 2024-06-24 19:16:23 ) [tab] => main [attributes] => Array ( [517] => Array ( [id] => 517 [title] => Paskirtis [type] => list [sarasas] => 1 [vidinis] => 1 [filter] => 1 [tag] => [values] => Array ( [2692] => Array ( [value_id] => 2692 [value] => Kita ) ) [value] => Kita ) [518] => Array ( [id] => 518 [title] => Objekto būklė [type] => list [sarasas] => 1 [vidinis] => 1 [filter] => 0 [tag] => [values] => Array ( [2698] => Array ( [value_id] => 2698 [value] => Renovuotinas ) ) [value] => Renovuotinas ) [520] => Array ( [id] => 520 [title] => Bendras plotas [type] => number [sarasas] => 1 [vidinis] => 1 [filter] => 0 [tag] => [postfix] => m2 [value_number] => 398 [value] => 398 m2 ) [521] => Array ( [id] => 521 [title] => Sklypo plotas [type] => number [sarasas] => 0 [vidinis] => 1 [filter] => 0 [tag] => [postfix] => a [value_number] => 48.8 [value] => 48.8 a ) [522] => Array ( [id] => 522 [title] => Namo aukštų sk. [type] => number [sarasas] => 0 [vidinis] => 1 [filter] => 0 [tag] => [postfix] => [value_number] => 2 [value] => 2 ) [528] => Array ( [id] => 528 [title] => Vandentiekis [type] => list [sarasas] => 1 [vidinis] => 1 [filter] => 0 [tag] => [values] => Array ( [2719] => Array ( [value_id] => 2719 [value] => Miesto vandentiekis ) ) [value] => Miesto vandentiekis ) [530] => Array ( [id] => 530 [title] => Sienos [type] => list [sarasas] => 0 [vidinis] => 1 [filter] => 0 [tag] => [values] => Array ( [2723] => Array ( [value_id] => 2723 [value] => Mūrinės ) ) [value] => Mūrinės ) [538] => Array ( [id] => 538 [title] => Vieta [type] => list [sarasas] => 0 [vidinis] => 1 [filter] => 0 [tag] => [values] => Array ( [2815] => Array ( [value_id] => 2815 [value] => Užmiestyje ) ) [value] => Užmiestyje ) ) [photos] => Array ( [0] => Array ( [id] => 117662 [rec] => 39736 [body] => [image] => parduodamas_parduodamos_398_kv_m_patalpos_bugeniu_k_mazeikiu_r_su_48_80_a_sklypu_39736_177522381362.05.jpg [width] => 1620 [height] => 905 [weight] => 1 [matoma] => 1 [data] => 2026-04-03 16:43:33 ) [1] => Array ( [id] => 117663 [rec] => 39736 [body] => [image] => parduodamas_parduodamos_398_kv_m_patalpos_bugeniu_k_mazeikiu_r_su_48_80_a_sklypu_39736_177522381378.63.jpg [width] => 1620 [height] => 907 [weight] => 2 [matoma] => 1 [data] => 2026-04-03 16:43:33 ) [2] => Array ( [id] => 117664 [rec] => 39736 [body] => [image] => parduodamas_parduodamos_398_kv_m_patalpos_bugeniu_k_mazeikiu_r_su_48_80_a_sklypu_39736_177522381398.48.jpg [width] => 1620 [height] => 906 [weight] => 3 [matoma] => 1 [data] => 2026-04-03 16:43:33 ) [3] => Array ( [id] => 117665 [rec] => 39736 [body] => [image] => parduodamas_parduodamos_398_kv_m_patalpos_bugeniu_k_mazeikiu_r_su_48_80_a_sklypu_39736_177522381415.38.jpg [width] => 1620 [height] => 907 [weight] => 4 [matoma] => 1 [data] => 2026-04-03 16:43:34 ) [4] => Array ( [id] => 117666 [rec] => 39736 [body] => [image] => parduodamas_parduodamos_398_kv_m_patalpos_bugeniu_k_mazeikiu_r_su_48_80_a_sklypu_39736_177522381436.93.jpg [width] => 1620 [height] => 907 [weight] => 5 [matoma] => 1 [data] => 2026-04-03 16:43:34 ) [5] => Array ( [id] => 117667 [rec] => 39736 [body] => [image] => parduodamas_parduodamos_398_kv_m_patalpos_bugeniu_k_mazeikiu_r_su_48_80_a_sklypu_39736_177522381447.72.jpg [width] => 1620 [height] => 1080 [weight] => 6 [matoma] => 1 [data] => 2026-04-03 16:43:34 ) [6] => Array ( [id] => 117668 [rec] => 39736 [body] => [image] => parduodamas_parduodamos_398_kv_m_patalpos_bugeniu_k_mazeikiu_r_su_48_80_a_sklypu_39736_177522381455.89.jpg [width] => 1620 [height] => 928 [weight] => 7 [matoma] => 1 [data] => 2026-04-03 16:43:34 ) [7] => Array ( [id] => 117669 [rec] => 39736 [body] => [image] => parduodamas_parduodamos_398_kv_m_patalpos_bugeniu_k_mazeikiu_r_su_48_80_a_sklypu_39736_177522381462.76.jpg [width] => 1620 [height] => 1080 [weight] => 8 [matoma] => 1 [data] => 2026-04-03 16:43:34 ) [8] => Array ( [id] => 117670 [rec] => 39736 [body] => [image] => parduodamas_parduodamos_398_kv_m_patalpos_bugeniu_k_mazeikiu_r_su_48_80_a_sklypu_39736_177522381469.98.jpg [width] => 1080 [height] => 1080 [weight] => 9 [matoma] => 1 [data] => 2026-04-03 16:43:34 ) [9] => Array ( [id] => 117671 [rec] => 39736 [body] => [image] => parduodamas_parduodamos_398_kv_m_patalpos_bugeniu_k_mazeikiu_r_su_48_80_a_sklypu_39736_177522381477.44.jpg [width] => 1200 [height] => 1200 [weight] => 10 [matoma] => 1 [data] => 2026-04-03 16:43:34 ) ) [photo] => Array ( [id] => 117662 [rec] => 39736 [body] => [image] => parduodamas_parduodamos_398_kv_m_patalpos_bugeniu_k_mazeikiu_r_su_48_80_a_sklypu_39736_177522381362.05.jpg [width] => 1620 [height] => 905 [weight] => 1 [matoma] => 1 [data] => 2026-04-03 16:43:33 ) [photo_count] => 0 [videos] => Array ( ) [video_count] => 0 [tech_count] => 0 [body_mob_short] => Parduodamas istorinį charakterį turintis 1901 m. statybos mūrinis, dviejų aukštų 398 kv. m pastatas Bugenių g., Bugeniuose, Mažeikių r. (buvę kultūros namai). Pastatas stovi 48,80 arų žemės sklype su atliktais kadastriniais matavimais, yra miestelio vandentiekis. Nors objektui reikalingas kapitalinis remontas, tai puiki galimybė prikelti solidų pastatą naujam gyvenimui ir pritaikyti jį pasirinktai veiklai.
Pardavimo kaina: 45 000 Eurų. Komisinis mokestis pirkė... [photos_mob] => Array ( [0] => Array ( [id] => 117662 [rec] => 39736 [body] => [image] => parduodamas_parduodamos_398_kv_m_patalpos_bugeniu_k_mazeikiu_r_su_48_80_a_sklypu_39736_177522381362.05.jpg [width] => 1620 [height] => 905 [weight] => 1 [matoma] => 1 [data] => 2026-04-03 16:43:33 ) [1] => Array ( [id] => 117663 [rec] => 39736 [body] => [image] => parduodamas_parduodamos_398_kv_m_patalpos_bugeniu_k_mazeikiu_r_su_48_80_a_sklypu_39736_177522381378.63.jpg [width] => 1620 [height] => 907 [weight] => 2 [matoma] => 1 [data] => 2026-04-03 16:43:33 ) [2] => Array ( [id] => 117664 [rec] => 39736 [body] => [image] => parduodamas_parduodamos_398_kv_m_patalpos_bugeniu_k_mazeikiu_r_su_48_80_a_sklypu_39736_177522381398.48.jpg [width] => 1620 [height] => 906 [weight] => 3 [matoma] => 1 [data] => 2026-04-03 16:43:33 ) [3] => Array ( [id] => 117665 [rec] => 39736 [body] => [image] => parduodamas_parduodamos_398_kv_m_patalpos_bugeniu_k_mazeikiu_r_su_48_80_a_sklypu_39736_177522381415.38.jpg [width] => 1620 [height] => 907 [weight] => 4 [matoma] => 1 [data] => 2026-04-03 16:43:34 ) [4] => Array ( [id] => 117666 [rec] => 39736 [body] => [image] => parduodamas_parduodamos_398_kv_m_patalpos_bugeniu_k_mazeikiu_r_su_48_80_a_sklypu_39736_177522381436.93.jpg [width] => 1620 [height] => 907 [weight] => 5 [matoma] => 1 [data] => 2026-04-03 16:43:34 ) [5] => Array ( [id] => 117667 [rec] => 39736 [body] => [image] => parduodamas_parduodamos_398_kv_m_patalpos_bugeniu_k_mazeikiu_r_su_48_80_a_sklypu_39736_177522381447.72.jpg [width] => 1620 [height] => 1080 [weight] => 6 [matoma] => 1 [data] => 2026-04-03 16:43:34 ) [6] => Array ( [id] => 117668 [rec] => 39736 [body] => [image] => parduodamas_parduodamos_398_kv_m_patalpos_bugeniu_k_mazeikiu_r_su_48_80_a_sklypu_39736_177522381455.89.jpg [width] => 1620 [height] => 928 [weight] => 7 [matoma] => 1 [data] => 2026-04-03 16:43:34 ) [7] => Array ( [id] => 117669 [rec] => 39736 [body] => [image] => parduodamas_parduodamos_398_kv_m_patalpos_bugeniu_k_mazeikiu_r_su_48_80_a_sklypu_39736_177522381462.76.jpg [width] => 1620 [height] => 1080 [weight] => 8 [matoma] => 1 [data] => 2026-04-03 16:43:34 ) [8] => Array ( [id] => 117670 [rec] => 39736 [body] => [image] => parduodamas_parduodamos_398_kv_m_patalpos_bugeniu_k_mazeikiu_r_su_48_80_a_sklypu_39736_177522381469.98.jpg [width] => 1080 [height] => 1080 [weight] => 9 [matoma] => 1 [data] => 2026-04-03 16:43:34 ) [9] => Array ( [id] => 117671 [rec] => 39736 [body] => [image] => parduodamas_parduodamos_398_kv_m_patalpos_bugeniu_k_mazeikiu_r_su_48_80_a_sklypu_39736_177522381477.44.jpg [width] => 1200 [height] => 1200 [weight] => 10 [matoma] => 1 [data] => 2026-04-03 16:43:34 ) ) ) 1

Pardavimo kaina:

45 000 EUR

Skelbimo ID: 39736

  • Paskirtis:Kita
  • Objekto būklė:Renovuotinas
  • Bendras plotas:398 m2
  • Sklypo plotas:48.8 a
  • Namo aukštų sk.:2
  • Vandentiekis:Miesto vandentiekis
  • Sienos:Mūrinės
  • Vieta:Užmiestyje

Turite klausimų? Klauskite

Kristina Kyzelienė

Kristina Kyzelienė

NT Savas būstas brokerė/ Mažeikių biuro vadovė/ Ventos g.51, Mažeikiai

Kontaktinis tel.: +370 657 87900
El. paštas: kristina.kyzeliene@savasbustas.lt


Būsto paskolos terminas (metais): 15 m.
Jūsų šeimos grynosios pajamos: 1200 €
NT objekto kaina:
Paskolos mėnesio įmoka:

Būsto paskolos skaičiuoklė yra orientacinio pobūdžio ir nėra banko įsipareigojimas suteikti būsto paskolą.

NT Objekto aprašymas

Parduodamas istorinį charakterį turintis 1901 m. statybos mūrinis, dviejų aukštų 398 kv. m pastatas Bugenių g., Bugeniuose, Mažeikių r. (buvę kultūros namai). Pastatas stovi 48,80 arų žemės sklype su atliktais kadastriniais matavimais, yra miestelio vandentiekis. Nors objektui reikalingas kapitalinis remontas, tai puiki galimybė prikelti solidų pastatą naujam gyvenimui ir pritaikyti jį pasirinktai veiklai.

Pardavimo kaina: 45 000 Eurų.
Komisinis mokestis pirkėjui netaikomas.

Susidomėjote? Skambinkite ir suderinsime laiką apžiūrai!
Sertifikuota NT brokerė Kristina Kyzelienė
Tel.: +370 657 87900
El. paštas: kristina.kyzeliene@savasbustas.lt

BENDRA INFORMACIJA:
- Adresas: Bugenių g ., Bugeniai, Mažeikių r.
- Bendras plotas: 398 kv. m;
- Sklypo plotas : 48,80 arų
- Paskirtis: kultūros;
- Statybos metai: 1901 m.;
- Aukštai: 2;
- Namo tipas: mūrinis;
- Vandentiekis: miestelio.

LOKACIJA:
- Mažeikiai: 10 km;
- Plungė: 50 km;
- Šiauliai: 90 km.

Ieškote patalpų gamtos apsuptyje, Mažeikių rajone?
Kviečiame apžiūrėti Jums patogiu laiku.
----------------------------------------
Norite, kad Jūsų nekilnojamojo turto skelbimas būtų toks pat reprezentatyvus ir plačiai reklamuojamas? Skambinkite ir mes tuo pasirūpinsime!

NORITE PARDUOTI? SKAMBINKITE - NUPIRKSIME MES ARBA PADĖSIME
SKUBIAI PARDUOTI.

 

Objekto vietos aprašymas

Objekto vieta žemėlapyje
Objekto gatvės 3D vaizdas

NT objekto papildoma informacija

Panašūs nekilnojamojo turto pasiūlymai

“Savas Būstas”

NT agentūros biurų adresai:
Gegužių g.45, LT-78326 Šiauliai

Kontaktinis tel. numeriai.:
+370 671 00 046
+370 653 56 751

©2025 Visos teisės saugomos.
Nekilnojamo turto bendrovė

LNTAA

Sprendimas: DESAmedia

Patalpos pardavimui

Parduodamos 398 kv.m. patalpos Bugenių k. Mažeikių r. su 48,80 a. sklypu

Skelbimo ID: 39736
Kaina: 45 000 Eur

NT objekto aprašymas

Paskirtis: Kita
Objekto būklė: Renovuotinas
Bendras plotas: 398 m2
Sklypo plotas: 48.8 a
Namo aukštų sk.: 2
Vandentiekis: Miesto vandentiekis
Sienos: Mūrinės
Vieta: Užmiestyje

NT objekto aprašymas

Parduodamas istorinį charakterį turintis 1901 m. statybos mūrinis, dviejų aukštų 398 kv. m pastatas Bugenių g., Bugeniuose, Mažeikių r. (buvę kultūros namai). Pastatas stovi 48,80 arų žemės sklype su atliktais kadastriniais matavimais, yra miestelio vandentiekis. Nors objektui reikalingas kapitalinis remontas, tai puiki galimybė prikelti solidų pastatą naujam gyvenimui ir pritaikyti jį pasirinktai veiklai.

Pardavimo kaina: 45 000 Eurų.
Komisinis mokestis pirkėjui netaikomas.

Susidomėjote? Skambinkite ir suderinsime laiką apžiūrai!
Sertifikuota NT brokerė Kristina Kyzelienė
Tel.: +370 657 87900
El. paštas: kristina.kyzeliene@savasbustas.lt

BENDRA INFORMACIJA:
- Adresas: Bugenių g ., Bugeniai, Mažeikių r.
- Bendras plotas: 398 kv. m;
- Sklypo plotas : 48,80 arų
- Paskirtis: kultūros;
- Statybos metai: 1901 m.;
- Aukštai: 2;
- Namo tipas: mūrinis;
- Vandentiekis: miestelio.

LOKACIJA:
- Mažeikiai: 10 km;
- Plungė: 50 km;
- Šiauliai: 90 km.

Ieškote patalpų gamtos apsuptyje, Mažeikių rajone?
Kviečiame apžiūrėti Jums patogiu laiku.
----------------------------------------
Norite, kad Jūsų nekilnojamojo turto skelbimas būtų toks pat reprezentatyvus ir plačiai reklamuojamas? Skambinkite ir mes tuo pasirūpinsime!

NORITE PARDUOTI? SKAMBINKITE - NUPIRKSIME MES ARBA PADĖSIME
SKUBIAI PARDUOTI.

 

Turite klausimų? Klauskite.
Kristina Kyzelienė
Kristina Kyzelienė
NT Savas būstas brokerė/ Mažeikių biuro vadovė/ Ventos g.51, Mažeikiai

Kontaktinis telefonas: +370 657 87900
El. paštas: kristina.kyzeliene@savasbustas.lt

NT Savas būstas
Pirm. - Ketv. 9.00 - 18.00 val.
 Penktadienį 9.00 - 17.00 val.
Šeštadieniais teiraukitės telefonu
Sekmadieniais teiraukitės telefonu

Turite klausimų? Klauskite.

Jei mūsų nekilnojamo turto skelbimas sudomino Jus prašome įvesti savo duomenis ir mūsų vadybininkai Jums paskambins dėl nekilnojamojo turto skelbimo.

Neužpildyti privalomi laukeliai.
Jūsų užklausa išsiųsta.
Siūlykite kainą

Jei norite nusipirkti pasirinktą nekilnojamą turtą už kitą kainą prašome įvesti savo duomenis, siūlomą kainą ir mūsų vadybininkai Jums paskambins dėl nekilnojamo turto skelbimo.

Neužpildyti privalomi laukeliai.
Jūsų pasiūlymas išsiųstas.