Slapukų naudojimas

Mums reikia Jūsų sutikimo naudoti slapukus (cookies), kad galėtume tobulinti svetainės veikimą, analizuoti srautą ir rodyti Jums aktualų turinį. Plačiau apie duomenų apsaugą.

Savas bustas - nekilnojamo turto ekspertai LNTAA

Butai pardavimui

Įsiminti
Parduodamas 2 kamb. butas, Partizanų g., Kaune

Parduodamas 2 kamb. butas, Partizanų g., Kaune

Array ( [id] => 39769 [weight] => 4 [lang] => 1 [title] => Parduodamas 2 kamb. butas, Partizanų g., Kaune [title_web] => [price] => 0.00 [price_euro] => 147000.00 [price_info] => [summary] => [body] =>

Parduodamas šviesus ir tvarkingas 2 kambarių butas su balkonu Partizanų g. 27B, Kaune. Šiame name butai parduodami retai – tai išskirtinė galimybė įsigyti nekilnojamąjį turtą tokioje vietoje. Butas yra mūriniame name, statytame 1995 metais. Bendras buto plotas – 49,88 kv. m, 4 aukštas iš 5. Tai vidurinis butas, todėl šildymo sezonu yra šiltas, o šildymo kaštai išlieka nedideli.
Butas tvarkingas, prižiūrėtas, tinkamas gyventi iš karto. Parduodamas su jame esančiais baldais ir buitine technika. Butui priklauso rūsys, yra erdvus įstiklintas balkonas. Vonia ir WC – vienoje patalpoje. Tvarkinga namo laiptinė, ramūs kaimynai, buto langai į vidinį namo kiemą, pro langus matosi daug žalumos.

Dėl išsamesnės informacijos ar apžiūros kreipkitės:
Sertifikuota NT brokerė Agnė Ilevičienė
Tel. +370 699 98981
El. paštas: agne.ileviciene@savasbustas.lt

BENDRA BUTO INFORMACIJA:
• Bendras plotas – 49,88 kv. m;
• Aukštas – 4/5;
• Kambarių sk. – 2 su balkonu, tamsus kambariukas;
• Namo tipas – mūrinis;
• Statybos metai – 1995 m.

KOMUNIKACIJOS:
• Šildymas – centrinis (reguliuojami radiatoriai);
• Vanduo – miesto;
• Kanalizacija – miesto;
• Elektra.

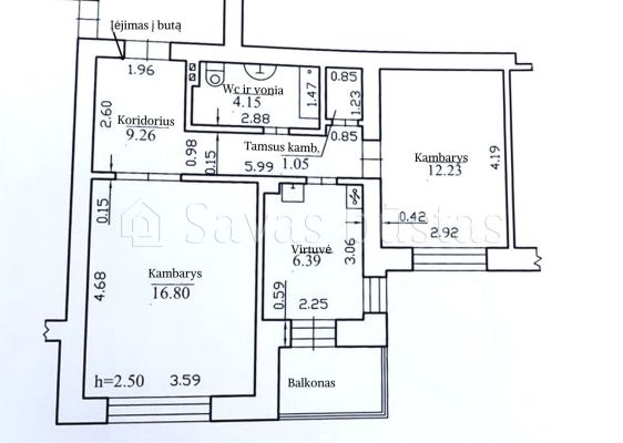
PATALPŲ PLOTAS:
• Kambarys – 16,80 kv. m.;
• Kambarys – 12,23 kv. m.;
• Koridorius – 9,26 kv. m.;
• Tamsus kamb. – 1,05 kv. m.;
• Virtuvė – 6,39 kv. m.;
• Vonios kambarys ir wc - 4,15 kv. m.;
• Balkonas.

PRIVALUMAI:
• Vidurinis butas;
• 4 aukštas iš 5;
• Butas tvarkingas, galima gyventi iš karto;
• Nedideli šildymo kaštai;
• Erdvus įstiklintas balkonas;
• Butui priklauso rūsys;
• Parduodamas su baldais ir buitine technika;
• Mūrinis, baltų plytų namas;
• Tvarkinga laiptinė;
• Ramūs kaimynai;
• Patogi lokacija.

Ieškote tvarkingo ir patogioje vietoje esančio 2 kambarių buto?
Kviečiame apžiūrėti šį butą Jums patogiu laiku.
_______________________________
Norite, kad Jūsų nekilnojamojo turto skelbimas būtų toks pat reprezentatyvus ir plačiai reklamuojamas?
Skambinkite ir mes tuo pasirūpinsime!

NORITE PARDUOTI? SKAMBINKITE – NUPIRKSIME MES ARBA PADĖSIME SKUBIAI PARDUOTI. 

[body_web] => [body_spec] => [status] => 0 [address] => [address_lat] => 0.000000 [address_lng] => 0.000000 [address_title] => [address_info] => [address_body] => [address_mapslt] => [streetview] => [link_360] => [staff_id] => 22954 [similar] => Array ( ) [discount] => 0 [isperkama_nuoma] => 0 [sildymas_lapkritis] => 0.00 [sildymas_gruodis] => 0.00 [sildymas_sausis] => 0.00 [sildymas_vasaris] => 0.00 [sildymas_kovas] => 0.00 [matoma] => 1 [data] => 2026-04-22 11:56:36 [update_data] => 2026-04-23 09:16:23 [addr] => {"fk_placereg_adm_units_id":43,"fk_placereg_adm_units":"Kaunas","fk_placereg_settlements_id":6,"fk_placereg_settlements":"Kaunas","fk_placereg_microdistricts_id":5,"fk_placereg_microdistricts":"Dainava","fk_placereg_streets_id":18901,"fk_placereg_streets":"Partizan\u0173 g.","aruodas2_region_id":"43","aruodas2_region":"Kauno m. sav.","aruodas2_district_id":"6","aruodas2_district":"Kauno m.","aruodas2_quartal_id":"66080","aruodas2_quartal":"Dainava","aruodas2_street_v2":"Partizan\u0173 g.","aruodas2_street_id":18901,"aruodas2_street":"Partizan\u0173 g."} [link] => /lt/butai_pardavimui/39769-parduodamas_2_kamb_butas_partizanu_g_kaune [export] => 1 [show_domoplius] => 0 [show_aruodas] => 0 [show_mls] => 0 [show_realu] => 0 [category] => 23 [broker] => Array ( [id] => 22954 [weight] => 12 [orderno] => [lang] => 1 [region] => Kaunas [name] => Agnė Ilevičienė [pareigos] => NT Savas būstas brokerė/ Kauno regiono vadovė/ K. Donelaičio g. 40, Kaunas [tel] => +370 699 98 981 [fax] => [email] => agne.ileviciene@savasbustas.lt [body] =>

NT "Savas būstas" Kauno filialas

Gyvenime esu mylinti mama ir optimistiška novatorė. Profesinėje veikloje – Jūsų konsultantė, nekilnojamo turto ekspertė. NT srityje pradėjau darbuotis sunkmečiu, kuomet ši rinka išgyveno rimčiausią pastarųjų dešimtmečių krizę. Ši iššūkių kupina profesinė patirtis tapo visrakčiu atrakinant net ir sudėtingiausių sandorių duris.

Mane motyvuoja nuolatiniai kompetencijų stiprinimo ir asmeninio tobulinimosi seminarai. Tam, kad mano klientai visuomet aplenktų kitus NT rinkos dalyvius, nuoširdžiai įsijaučiu į kiekvieno patirtį, išklausau lūkesčius ir, profesionaliai įvertinus visas aplinkybes, pasiūlau maksimalų rezultatą per minimalų laiką.

[status] => 1 [image] => DSC_1127_image.JPG [video] => [matoma] => 1 [data] => 2019-01-24 22:03:03 ) [tab] => main [attributes] => Array ( [208] => Array ( [id] => 208 [title] => Kambarių sk. [type] => list [sarasas] => 1 [vidinis] => 1 [filter] => 1 [tag] => [values] => Array ( [800] => Array ( [value_id] => 800 [value] => 2 ) ) [value] => 2 ) [205] => Array ( [id] => 205 [title] => Bendras plotas [type] => number [sarasas] => 1 [vidinis] => 1 [filter] => 1 [tag] => [postfix] => m2 [value_number] => 49.88 [value] => 49.88 m2 ) [207] => Array ( [id] => 207 [title] => Aukštas [type] => number [sarasas] => 1 [vidinis] => 1 [filter] => 1 [tag] => [postfix] => [value_number] => 4 [value] => 4 ) [204] => Array ( [id] => 204 [title] => Objekto būklė [type] => list [sarasas] => 1 [vidinis] => 1 [filter] => 0 [tag] => [values] => Array ( [796] => Array ( [value_id] => 796 [value] => Tvarkingas ) ) [value] => Tvarkingas ) [60] => Array ( [id] => 60 [title] => Įrengimas [type] => list [sarasas] => 1 [vidinis] => 1 [filter] => 0 [tag] => [values] => Array ( [65] => Array ( [value_id] => 65 [value] => Įrengtas ) ) [value] => Įrengtas ) [203] => Array ( [id] => 203 [title] => Pastato tipas [type] => list [sarasas] => 0 [vidinis] => 1 [filter] => 0 [tag] => [values] => Array ( [785] => Array ( [value_id] => 785 [value] => Mūrinis ) ) [value] => Mūrinis ) [206] => Array ( [id] => 206 [title] => Namo aukštų sk. [type] => number [sarasas] => 0 [vidinis] => 1 [filter] => 0 [tag] => [postfix] => [value_number] => 5 [value] => 5 ) [210] => Array ( [id] => 210 [title] => Statybos data [type] => text [sarasas] => 0 [vidinis] => 1 [filter] => 0 [tag] => [value] => 1995 ) [212] => Array ( [id] => 212 [title] => Sienos [type] => list [sarasas] => 0 [vidinis] => 1 [filter] => 0 [tag] => [values] => Array ( [810] => Array ( [value_id] => 810 [value] => Mūrinės ) ) [value] => Mūrinės ) [214] => Array ( [id] => 214 [title] => Automobilių stovėjimo aikštelė [type] => list [sarasas] => 0 [vidinis] => 1 [filter] => 0 [tag] => [values] => Array ( [819] => Array ( [value_id] => 819 [value] => Yra ) ) [value] => Yra ) [216] => Array ( [id] => 216 [title] => Kelias [type] => list [sarasas] => 0 [vidinis] => 1 [filter] => 0 [tag] => [values] => Array ( [826] => Array ( [value_id] => 826 [value] => Geros būklės ) ) [value] => Geros būklės ) [217] => Array ( [id] => 217 [title] => Vieta [type] => list [sarasas] => 0 [vidinis] => 1 [filter] => 0 [tag] => [values] => Array ( [832] => Array ( [value_id] => 832 [value] => Mieste ) ) [value] => Mieste ) [220] => Array ( [id] => 220 [title] => Durys [type] => list [sarasas] => 0 [vidinis] => 1 [filter] => 0 [tag] => [values] => Array ( [854] => Array ( [value_id] => 854 [value] => Medinės ) ) [value] => Medinės ) [221] => Array ( [id] => 221 [title] => Langai [type] => list [sarasas] => 0 [vidinis] => 1 [filter] => 0 [tag] => [values] => Array ( [861] => Array ( [value_id] => 861 [value] => Mediniai ) ) [value] => Mediniai ) [222] => Array ( [id] => 222 [title] => Vandentiekis [type] => list [sarasas] => 0 [vidinis] => 1 [filter] => 0 [tag] => [values] => Array ( [867] => Array ( [value_id] => 867 [value] => Miesto vandentiekis ) ) [value] => Miesto vandentiekis ) [223] => Array ( [id] => 223 [title] => Kanalizacija [type] => list [sarasas] => 0 [vidinis] => 1 [filter] => 0 [tag] => [values] => Array ( [871] => Array ( [value_id] => 871 [value] => Miesto kanalizacija ) ) [value] => Miesto kanalizacija ) [605] => Array ( [id] => 605 [title] => Butų kiekis aukšte [type] => list [sarasas] => 0 [vidinis] => 1 [filter] => 0 [tag] => [values] => Array ( [3322] => Array ( [value_id] => 3322 [value] => 3 ) ) [value] => 3 ) ) [photos] => Array ( [0] => Array ( [id] => 118665 [rec] => 39769 [body] => [image] => parduodamas_parduodamas_2_kamb_butas_partizanu_g_kaune_39769_177684839537.93.jpg [width] => 1620 [height] => 1080 [weight] => 1 [matoma] => 1 [data] => 2026-04-22 11:59:55 ) [1] => Array ( [id] => 118738 [rec] => 39769 [body] => [image] => parduodamas_parduodamas_2_kamb_butas_partizanu_g_kaune_39769_177692500741.2.jpg [width] => 1620 [height] => 1080 [weight] => 2 [matoma] => 1 [data] => 2026-04-23 09:16:47 ) [2] => Array ( [id] => 118740 [rec] => 39769 [body] => [image] => parduodamas_parduodamas_2_kamb_butas_partizanu_g_kaune_39769_177692500760.04.jpg [width] => 1620 [height] => 1080 [weight] => 3 [matoma] => 1 [data] => 2026-04-23 09:16:47 ) [3] => Array ( [id] => 118739 [rec] => 39769 [body] => [image] => parduodamas_parduodamas_2_kamb_butas_partizanu_g_kaune_39769_177692500750.46.jpg [width] => 1620 [height] => 1080 [weight] => 4 [matoma] => 1 [data] => 2026-04-23 09:16:47 ) [4] => Array ( [id] => 118661 [rec] => 39769 [body] => [image] => parduodamas_parduodamas_2_kamb_butas_partizanu_g_kaune_39769_177684839429.36.jpg [width] => 1620 [height] => 1080 [weight] => 9 [matoma] => 1 [data] => 2026-04-22 11:59:54 ) [5] => Array ( [id] => 118660 [rec] => 39769 [body] => [image] => parduodamas_parduodamas_2_kamb_butas_partizanu_g_kaune_39769_177684839396.65.jpg [width] => 1620 [height] => 1080 [weight] => 10 [matoma] => 1 [data] => 2026-04-22 11:59:53 ) [6] => Array ( [id] => 118659 [rec] => 39769 [body] => [image] => parduodamas_parduodamas_2_kamb_butas_partizanu_g_kaune_39769_177684839374.24.jpg [width] => 1620 [height] => 1080 [weight] => 11 [matoma] => 1 [data] => 2026-04-22 11:59:53 ) [7] => Array ( [id] => 118666 [rec] => 39769 [body] => [image] => parduodamas_parduodamas_2_kamb_butas_partizanu_g_kaune_39769_177684854234.98.png [width] => 946 [height] => 1424 [weight] => 14 [matoma] => 1 [data] => 2026-04-22 12:02:22 ) [8] => Array ( [id] => 118657 [rec] => 39769 [body] => [image] => parduodamas_parduodamas_2_kamb_butas_partizanu_g_kaune_39769_177684839325.34.jpg [width] => 1620 [height] => 1080 [weight] => 15 [matoma] => 1 [data] => 2026-04-22 11:59:53 ) [9] => Array ( [id] => 118667 [rec] => 39769 [body] => [image] => parduodamas_parduodamas_2_kamb_butas_partizanu_g_kaune_39769_177684864868.95.png [width] => 1023 [height] => 1537 [weight] => 16 [matoma] => 1 [data] => 2026-04-22 12:04:08 ) [10] => Array ( [id] => 118656 [rec] => 39769 [body] => [image] => parduodamas_parduodamas_2_kamb_butas_partizanu_g_kaune_39769_177684839308.04.jpg [width] => 1620 [height] => 1080 [weight] => 17 [matoma] => 1 [data] => 2026-04-22 11:59:53 ) [11] => Array ( [id] => 118654 [rec] => 39769 [body] => [image] => parduodamas_parduodamas_2_kamb_butas_partizanu_g_kaune_39769_177684839263.98.jpg [width] => 1620 [height] => 1080 [weight] => 18 [matoma] => 1 [data] => 2026-04-22 11:59:52 ) [12] => Array ( [id] => 118655 [rec] => 39769 [body] => [image] => parduodamas_parduodamas_2_kamb_butas_partizanu_g_kaune_39769_177684839285.54.jpg [width] => 1620 [height] => 1080 [weight] => 19 [matoma] => 1 [data] => 2026-04-22 11:59:52 ) ) [photo] => Array ( [id] => 118665 [rec] => 39769 [body] => [image] => parduodamas_parduodamas_2_kamb_butas_partizanu_g_kaune_39769_177684839537.93.jpg [width] => 1620 [height] => 1080 [weight] => 1 [matoma] => 1 [data] => 2026-04-22 11:59:55 ) [photo_count] => 0 [videos] => Array ( ) [video_count] => 0 [tech_count] => 0 [body_mob_short] => Parduodamas šviesus ir tvarkingas 2 kambarių butas su balkonu Partizanų g. 27B, Kaune. Šiame name butai parduodami retai – tai išskirtinė galimybė įsigyti nekilnojamąjį turtą tokioje vietoje. Butas yra mūriniame name, statytame 1995 metais. Bendras buto plotas – 49,88 kv. m, 4 aukštas iš 5. Tai vidurinis butas, todėl šildymo sezonu yra šiltas, o šildymo kaštai išlieka nedideli. Butas tvarkingas, priži... [photos_mob] => Array ( [0] => Array ( [id] => 118665 [rec] => 39769 [body] => [image] => parduodamas_parduodamas_2_kamb_butas_partizanu_g_kaune_39769_177684839537.93.jpg [width] => 1620 [height] => 1080 [weight] => 1 [matoma] => 1 [data] => 2026-04-22 11:59:55 ) [1] => Array ( [id] => 118738 [rec] => 39769 [body] => [image] => parduodamas_parduodamas_2_kamb_butas_partizanu_g_kaune_39769_177692500741.2.jpg [width] => 1620 [height] => 1080 [weight] => 2 [matoma] => 1 [data] => 2026-04-23 09:16:47 ) [2] => Array ( [id] => 118740 [rec] => 39769 [body] => [image] => parduodamas_parduodamas_2_kamb_butas_partizanu_g_kaune_39769_177692500760.04.jpg [width] => 1620 [height] => 1080 [weight] => 3 [matoma] => 1 [data] => 2026-04-23 09:16:47 ) [3] => Array ( [id] => 118739 [rec] => 39769 [body] => [image] => parduodamas_parduodamas_2_kamb_butas_partizanu_g_kaune_39769_177692500750.46.jpg [width] => 1620 [height] => 1080 [weight] => 4 [matoma] => 1 [data] => 2026-04-23 09:16:47 ) [4] => Array ( [id] => 118661 [rec] => 39769 [body] => [image] => parduodamas_parduodamas_2_kamb_butas_partizanu_g_kaune_39769_177684839429.36.jpg [width] => 1620 [height] => 1080 [weight] => 9 [matoma] => 1 [data] => 2026-04-22 11:59:54 ) [5] => Array ( [id] => 118660 [rec] => 39769 [body] => [image] => parduodamas_parduodamas_2_kamb_butas_partizanu_g_kaune_39769_177684839396.65.jpg [width] => 1620 [height] => 1080 [weight] => 10 [matoma] => 1 [data] => 2026-04-22 11:59:53 ) [6] => Array ( [id] => 118659 [rec] => 39769 [body] => [image] => parduodamas_parduodamas_2_kamb_butas_partizanu_g_kaune_39769_177684839374.24.jpg [width] => 1620 [height] => 1080 [weight] => 11 [matoma] => 1 [data] => 2026-04-22 11:59:53 ) [7] => Array ( [id] => 118666 [rec] => 39769 [body] => [image] => parduodamas_parduodamas_2_kamb_butas_partizanu_g_kaune_39769_177684854234.98.png [width] => 946 [height] => 1424 [weight] => 14 [matoma] => 1 [data] => 2026-04-22 12:02:22 ) [8] => Array ( [id] => 118657 [rec] => 39769 [body] => [image] => parduodamas_parduodamas_2_kamb_butas_partizanu_g_kaune_39769_177684839325.34.jpg [width] => 1620 [height] => 1080 [weight] => 15 [matoma] => 1 [data] => 2026-04-22 11:59:53 ) [9] => Array ( [id] => 118667 [rec] => 39769 [body] => [image] => parduodamas_parduodamas_2_kamb_butas_partizanu_g_kaune_39769_177684864868.95.png [width] => 1023 [height] => 1537 [weight] => 16 [matoma] => 1 [data] => 2026-04-22 12:04:08 ) [10] => Array ( [id] => 118656 [rec] => 39769 [body] => [image] => parduodamas_parduodamas_2_kamb_butas_partizanu_g_kaune_39769_177684839308.04.jpg [width] => 1620 [height] => 1080 [weight] => 17 [matoma] => 1 [data] => 2026-04-22 11:59:53 ) [11] => Array ( [id] => 118654 [rec] => 39769 [body] => [image] => parduodamas_parduodamas_2_kamb_butas_partizanu_g_kaune_39769_177684839263.98.jpg [width] => 1620 [height] => 1080 [weight] => 18 [matoma] => 1 [data] => 2026-04-22 11:59:52 ) [12] => Array ( [id] => 118655 [rec] => 39769 [body] => [image] => parduodamas_parduodamas_2_kamb_butas_partizanu_g_kaune_39769_177684839285.54.jpg [width] => 1620 [height] => 1080 [weight] => 19 [matoma] => 1 [data] => 2026-04-22 11:59:52 ) ) ) 1

Pardavimo kaina:

147 000 EUR

Skelbimo ID: 39769

  • Kambarių sk.:2
  • Bendras plotas:49.88 m2
  • Aukštas:4
  • Objekto būklė:Tvarkingas
  • Įrengimas:Įrengtas
  • Pastato tipas:Mūrinis
  • Namo aukštų sk.:5
  • Statybos data:1995
  • Sienos:Mūrinės

Turite klausimų? Klauskite

Agnė Ilevičienė

Agnė Ilevičienė

NT Savas būstas brokerė/ Kauno regiono vadovė/ K. Donelaičio g. 40, Kaunas

Kontaktinis tel.: +370 699 98 981
El. paštas: agne.ileviciene@savasbustas.lt


Būsto paskolos terminas (metais): 15 m.
Jūsų šeimos grynosios pajamos: 1200 €
NT objekto kaina:
Paskolos mėnesio įmoka:

Būsto paskolos skaičiuoklė yra orientacinio pobūdžio ir nėra banko įsipareigojimas suteikti būsto paskolą.

NT objekto aprašymas

  • Kelias:Geros būklės
  • Vieta:Mieste
  • Durys:Medinės
  • Langai:Mediniai
  • Vandentiekis:Miesto vandentiekis
  • Kanalizacija:Miesto kanalizacija
  • Butų kiekis aukšte:3

NT Objekto aprašymas

Parduodamas šviesus ir tvarkingas 2 kambarių butas su balkonu Partizanų g. 27B, Kaune. Šiame name butai parduodami retai – tai išskirtinė galimybė įsigyti nekilnojamąjį turtą tokioje vietoje. Butas yra mūriniame name, statytame 1995 metais. Bendras buto plotas – 49,88 kv. m, 4 aukštas iš 5. Tai vidurinis butas, todėl šildymo sezonu yra šiltas, o šildymo kaštai išlieka nedideli.
Butas tvarkingas, prižiūrėtas, tinkamas gyventi iš karto. Parduodamas su jame esančiais baldais ir buitine technika. Butui priklauso rūsys, yra erdvus įstiklintas balkonas. Vonia ir WC – vienoje patalpoje. Tvarkinga namo laiptinė, ramūs kaimynai, buto langai į vidinį namo kiemą, pro langus matosi daug žalumos.

Dėl išsamesnės informacijos ar apžiūros kreipkitės:
Sertifikuota NT brokerė Agnė Ilevičienė
Tel. +370 699 98981
El. paštas: agne.ileviciene@savasbustas.lt

BENDRA BUTO INFORMACIJA:
• Bendras plotas – 49,88 kv. m;
• Aukštas – 4/5;
• Kambarių sk. – 2 su balkonu, tamsus kambariukas;
• Namo tipas – mūrinis;
• Statybos metai – 1995 m.

KOMUNIKACIJOS:
• Šildymas – centrinis (reguliuojami radiatoriai);
• Vanduo – miesto;
• Kanalizacija – miesto;
• Elektra.

PATALPŲ PLOTAS:
• Kambarys – 16,80 kv. m.;
• Kambarys – 12,23 kv. m.;
• Koridorius – 9,26 kv. m.;
• Tamsus kamb. – 1,05 kv. m.;
• Virtuvė – 6,39 kv. m.;
• Vonios kambarys ir wc - 4,15 kv. m.;
• Balkonas.

PRIVALUMAI:
• Vidurinis butas;
• 4 aukštas iš 5;
• Butas tvarkingas, galima gyventi iš karto;
• Nedideli šildymo kaštai;
• Erdvus įstiklintas balkonas;
• Butui priklauso rūsys;
• Parduodamas su baldais ir buitine technika;
• Mūrinis, baltų plytų namas;
• Tvarkinga laiptinė;
• Ramūs kaimynai;
• Patogi lokacija.

Ieškote tvarkingo ir patogioje vietoje esančio 2 kambarių buto?
Kviečiame apžiūrėti šį butą Jums patogiu laiku.
_______________________________
Norite, kad Jūsų nekilnojamojo turto skelbimas būtų toks pat reprezentatyvus ir plačiai reklamuojamas?
Skambinkite ir mes tuo pasirūpinsime!

NORITE PARDUOTI? SKAMBINKITE – NUPIRKSIME MES ARBA PADĖSIME SKUBIAI PARDUOTI. 

Objekto vietos aprašymas

Objekto vieta žemėlapyje
Objekto gatvės 3D vaizdas

NT objekto papildoma informacija

“Savas Būstas”

NT agentūros biurų adresai:
Gegužių g.45, LT-78326 Šiauliai

Kontaktinis tel. numeriai.:
+370 671 00 046
+370 653 56 751

©2025 Visos teisės saugomos.
Nekilnojamo turto bendrovė

LNTAA

Sprendimas: DESAmedia

Butai pardavimui

Parduodamas 2 kamb. butas, Partizanų g., Kaune

Skelbimo ID: 39769
Kaina: 147 000 Eur

NT objekto aprašymas

Kambarių sk.: 2
Bendras plotas: 49.88 m2
Aukštas: 4
Objekto būklė: Tvarkingas
Įrengimas: Įrengtas
Pastato tipas: Mūrinis
Namo aukštų sk.: 5
Statybos data: 1995
Sienos: Mūrinės
Automobilių stovėjimo aikštelė: Yra
Kelias: Geros būklės
Vieta: Mieste
Durys: Medinės
Langai: Mediniai
Vandentiekis: Miesto vandentiekis
Kanalizacija: Miesto kanalizacija
Butų kiekis aukšte: 3

NT objekto aprašymas

Parduodamas šviesus ir tvarkingas 2 kambarių butas su balkonu Partizanų g. 27B, Kaune. Šiame name butai parduodami retai – tai išskirtinė galimybė įsigyti nekilnojamąjį turtą tokioje vietoje. Butas yra mūriniame name, statytame 1995 metais. Bendras buto plotas – 49,88 kv. m, 4 aukštas iš 5. Tai vidurinis butas, todėl šildymo sezonu yra šiltas, o šildymo kaštai išlieka nedideli.
Butas tvarkingas, prižiūrėtas, tinkamas gyventi iš karto. Parduodamas su jame esančiais baldais ir buitine technika. Butui priklauso rūsys, yra erdvus įstiklintas balkonas. Vonia ir WC – vienoje patalpoje. Tvarkinga namo laiptinė, ramūs kaimynai, buto langai į vidinį namo kiemą, pro langus matosi daug žalumos.

Dėl išsamesnės informacijos ar apžiūros kreipkitės:
Sertifikuota NT brokerė Agnė Ilevičienė
Tel. +370 699 98981
El. paštas: agne.ileviciene@savasbustas.lt

BENDRA BUTO INFORMACIJA:
• Bendras plotas – 49,88 kv. m;
• Aukštas – 4/5;
• Kambarių sk. – 2 su balkonu, tamsus kambariukas;
• Namo tipas – mūrinis;
• Statybos metai – 1995 m.

KOMUNIKACIJOS:
• Šildymas – centrinis (reguliuojami radiatoriai);
• Vanduo – miesto;
• Kanalizacija – miesto;
• Elektra.

PATALPŲ PLOTAS:
• Kambarys – 16,80 kv. m.;
• Kambarys – 12,23 kv. m.;
• Koridorius – 9,26 kv. m.;
• Tamsus kamb. – 1,05 kv. m.;
• Virtuvė – 6,39 kv. m.;
• Vonios kambarys ir wc - 4,15 kv. m.;
• Balkonas.

PRIVALUMAI:
• Vidurinis butas;
• 4 aukštas iš 5;
• Butas tvarkingas, galima gyventi iš karto;
• Nedideli šildymo kaštai;
• Erdvus įstiklintas balkonas;
• Butui priklauso rūsys;
• Parduodamas su baldais ir buitine technika;
• Mūrinis, baltų plytų namas;
• Tvarkinga laiptinė;
• Ramūs kaimynai;
• Patogi lokacija.

Ieškote tvarkingo ir patogioje vietoje esančio 2 kambarių buto?
Kviečiame apžiūrėti šį butą Jums patogiu laiku.
_______________________________
Norite, kad Jūsų nekilnojamojo turto skelbimas būtų toks pat reprezentatyvus ir plačiai reklamuojamas?
Skambinkite ir mes tuo pasirūpinsime!

NORITE PARDUOTI? SKAMBINKITE – NUPIRKSIME MES ARBA PADĖSIME SKUBIAI PARDUOTI. 

Turite klausimų? Klauskite.
Agnė Ilevičienė
Agnė Ilevičienė
NT Savas būstas brokerė/ Kauno regiono vadovė/ K. Donelaičio g. 40, Kaunas

Kontaktinis telefonas: +370 699 98 981
El. paštas: agne.ileviciene@savasbustas.lt

NT Savas būstas
Pirm. - Ketv. 9.00 - 18.00 val.
 Penktadienį 9.00 - 17.00 val.
Šeštadieniais teiraukitės telefonu
Sekmadieniais teiraukitės telefonu

Turite klausimų? Klauskite.

Jei mūsų nekilnojamo turto skelbimas sudomino Jus prašome įvesti savo duomenis ir mūsų vadybininkai Jums paskambins dėl nekilnojamojo turto skelbimo.

Neužpildyti privalomi laukeliai.
Jūsų užklausa išsiųsta.
Siūlykite kainą

Jei norite nusipirkti pasirinktą nekilnojamą turtą už kitą kainą prašome įvesti savo duomenis, siūlomą kainą ir mūsų vadybininkai Jums paskambins dėl nekilnojamo turto skelbimo.

Neužpildyti privalomi laukeliai.
Jūsų pasiūlymas išsiųstas.